心动300秒|   返回主站|   日照站
上一张 下一张
  • 0
  • 1
  • 2
  • 3
  • 4
  • 5
  • 6
小区名称:桃李芳菲
户型:四居室
面积:121-180平米
装修风格:现代风格
分享到:
桃李芳菲
四居室
建筑面积:121-180平米
现代风格
喜欢就找TA
设计师
研发组
Detail design
设计细节
本案采用现代简约风格,我们让空间尽量连续开放,同时根据使用功能赋予空间材质和尺度不同变化。居住者在日常生活中不受空间边界限制,为生活场景中自由随心的行为创造更多的可能性。让整个居家空间除去雅致、轻奢的质感外,也充盈着设计惊喜,还原生活本应有的闲适体验。

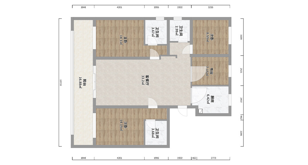
桃李芳菲4室2厅1厨2卫132㎡户型图

桃李芳菲4室2厅1厨2卫132㎡户型图


桃李芳菲4室2厅1厨2卫132㎡客厅现代简约风格装修效果图

桃李芳菲4室2厅1厨2卫132㎡客厅现代简约风格装修效果图


桃李芳菲4室2厅1厨2卫132㎡客厅现代简约风格装修效果图

桃李芳菲4室2厅1厨2卫132㎡客厅现代简约风格装修效果图


桃李芳菲4室2厅1厨2卫132㎡客厅现代简约风格装修效果图

桃李芳菲4室2厅1厨2卫132㎡客厅现代简约风格装修效果图


桃李芳菲4室2厅1厨2卫132㎡客厅现代简约风格装修效果图

桃李芳菲4室2厅1厨2卫132㎡客厅现代简约风格装修效果图


桃李芳菲4室2厅1厨2卫132㎡厨房现代简约风格装修效果图

桃李芳菲4室2厅1厨2卫132㎡厨房现代简约风格装修效果图


桃李芳菲4室2厅1厨2卫132㎡卧室现代简约风格装修效果图

桃李芳菲4室2厅1厨2卫132㎡卧室现代简约风格装修效果图

一个案例就是一个家的故事 · 值得你慢慢品味
One case is the story of a home
设计一个家就是设计容纳这个家的故事的空间。家里的每一个人用什么样的姿态生活是设计师构思的主线。
东方家园装饰集团总部美学馆
地址:青岛市市南区福州北路18号
服务热线:400-08-39800
东方家园大宅别墅中心(香港东方国际)
地址:青岛市市南区福州北路22号
服务热线:400-08-39800
东方家园老房改造创意中心
地址:青岛市市南区福州北路20号
服务热线:400-08-39800
东方家园黄岛分公司
地址:开发区漓江西路唐岛湾步行街
服务热线:400-08-39800
东方家园城阳分公司
地址:城阳区正阳中路口水街28号
服务热线:400-08-39800
东方家园胶州分公司
地址:胶州市北京路三里河文苑150号
服务热线:400-08-39800
东方家园日照分公司
地址:日照市济南路336号日照书城3F
服务热线:400-08-39800
东方家园焕新家轻装轻改
地址:市南区漳州一路8号
服务热线:400-08-39800

全国统一咨询热线
400-08-39800
Copyright©2021东方家园装饰集团
鲁ICP备10205373号