心动300秒|   返回主站|   日照站
上一张 下一张
  • 0
  • 1
  • 2
  • 3
  • 4
  • 5
  • 6
  • 7
小区名称:中海·观澜庭
户型:三居室
面积:120平米以下
装修风格:简约风格
分享到:
中海·观澜庭
三居室
建筑面积:120平米以下
简约风格
喜欢就找TA
设计师
王静函
Detail design
设计细节
温柔沉稳,这些色感韵律令人身心放松。简单的吊顶凸显空间层次,烘托温馨氛围的同时打破了天花板的上限,放大视觉空间让空间精细考究。浅灰色的茶几与沙发完美融合,呈现出淡雅又不失格调的丝滑柔情,搭配开放式的电视柜,增加收纳性同时协调整体空间的氛围,彰显客厅空间的温馨。无主灯设计、瓶插花的装饰下浪漫清新之感迎面扑来与浅色系的装饰画点缀,让整体空间更有层次感且不落于俗。

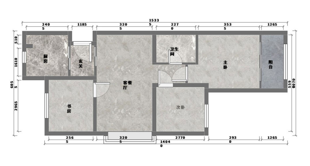
中海观澜庭97㎡三室两厅户型平面布局图.jpg

中海观澜庭97㎡三室两厅户型平面布局图


中海·观澜庭97㎡三室两厅入户玄关简约风格装修案例效果图


中海·观澜庭97㎡三室两厅客厅电视墙简约风格装修案例效果图


中海·观澜庭97㎡三室两厅客厅简约风格装修案例效果图


中海·观澜庭97㎡三室两厅客厅沙发简约风格装修案例效果图


中海·观澜庭97㎡三室两厅餐厅简约风格装修案例效果图


中海·观澜庭97㎡三室两厅主卧简约风格装修案例效果图


中海·观澜庭97㎡三室两厅次卧简约风格装修案例效果图


中海观澜庭97㎡三室两厅浴室简约风格装修案例效果图-全.jpg

中海观澜庭97㎡三室两厅浴室简约风格装修案例效果图


中海观澜庭97㎡三室两厅卫生间简约风格装修案例效果图-全.jpg

中海观澜庭97㎡三室两厅卫生间简约风格装修案例效果图

一个案例就是一个家的故事 · 值得你慢慢品味
One case is the story of a home
设计一个家就是设计容纳这个家的故事的空间。家里的每一个人用什么样的姿态生活是设计师构思的主线。
东方家园装饰集团总部旗舰店
地址:青岛市市南区福州北路5号
服务热线:400-08-39800
东方家园大宅别墅中心(香港东方国际)
地址:青岛市市南区福州北路22号
服务热线:400-08-39800
东方家园老房改造创意中心
地址:青岛市市南区福州北路20号
服务热线:400-08-39800
东方家园黄岛分公司
地址:开发区漓江西路唐岛湾步行街
服务热线:400-08-39800
东方家园城阳分公司
地址:城阳区正阳中路口水街28号
服务热线:400-08-39800
东方家园胶州分公司
地址:胶州市北京路三里河文苑150号
服务热线:400-08-39800
东方家园日照分公司
地址:日照市济南路336号日照书城3F
服务热线:400-08-39800


全国统一咨询热线
400-08-39800
Copyright©2021东方家园装饰集团
鲁ICP备10205373号