心动300秒|   返回主站|   日照站
上一张 下一张
  • 0
  • 1
  • 2
  • 3
  • 4
  • 5
  • 6
小区名称:安纳溪
户型:别墅
面积:181-320平米
装修风格:新中式风格
分享到:
安纳溪
别墅
建筑面积:181-320平米
新中式风格
喜欢就找TA
设计师
代晓华
Detail design
设计细节
房主是一对85后年轻人,按照跟房主的沟通整体定位新中式风格,融合了北欧元素。简约的设计风格具有实用、简洁、功能性强等特点。非常符合现代年轻人的需求。因为现在生活在节奏较快的都市中,整天在忙碌中度过,时间长了会使人感觉非常的疲惫。所以与红红绿绿的跳眼颜色相比,更需要种浅色调,营造一种温馨、安静的生活氛围。来忘记外面的烦恼,有自己的一方天地。

安纳溪220㎡独栋别墅一层户型平面布局图


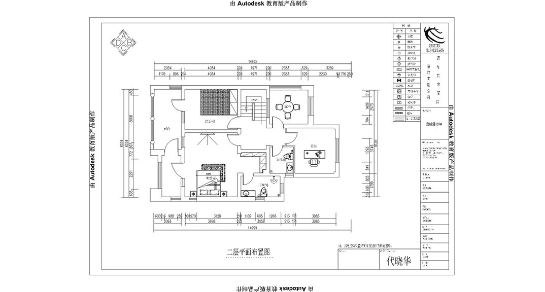
安纳溪220㎡独栋别墅二层户型平面布局图


安纳溪220㎡独栋别墅客厅沙发新中式风格装修案例效果图


安纳溪220㎡独栋别墅客厅电视新中式风格装修案例效果图


安纳溪220㎡独栋别墅客厅新中式风格装修案例效果图


安纳溪220㎡独栋别墅客厅新中式风格装修案例效果图


安纳溪220㎡独栋别墅餐厅新中式风格装修案例效果图

一个案例就是一个家的故事 · 值得你慢慢品味
One case is the story of a home
设计一个家就是设计容纳这个家的故事的空间。家里的每一个人用什么样的姿态生活是设计师构思的主线。
东方家园装饰集团总部美学馆
地址:青岛市市南区福州北路18号
服务热线:400-08-39800
东方家园大宅别墅中心(香港东方国际)
地址:青岛市市南区福州北路22号
服务热线:400-08-39800
东方家园老房改造创意中心
地址:青岛市市南区福州北路20号
服务热线:400-08-39800
东方家园黄岛分公司
地址:开发区漓江西路唐岛湾步行街
服务热线:400-08-39800
东方家园城阳分公司
地址:城阳区正阳中路口水街28号
服务热线:400-08-39800
东方家园胶州分公司
地址:胶州市北京路三里河文苑150号
服务热线:400-08-39800
东方家园日照分公司
地址:日照市济南路336号日照书城3F
服务热线:400-08-39800
东方家园焕新家轻装轻改
地址:市南区漳州一路8号
服务热线:400-08-39800

全国统一咨询热线
400-08-39800
Copyright©2021东方家园装饰集团
鲁ICP备10205373号