心动300秒|   返回主站|   日照站
上一张 下一张
  • 0
  • 1
  • 2
  • 3
  • 4
  • 5
  • 6
小区名称:依云四季
户型:三居室
面积:120平米以下
装修风格:简约风格
分享到:
依云四季
三居室
建筑面积:120平米以下
简约风格
喜欢就找TA
设计师
研发组
Detail design
设计细节
现代风格是一种追求时尚与潮流的装修风格,通过保持现代大方的空间,在家具造型方面也是以时尚优雅为主,彰显出一种现代舒适而不是艺术气质的空间。整体灰白色的空间中,餐椅作为空间中的亮色,结合金属材质的点缀瞬间就提升了空间的气质。

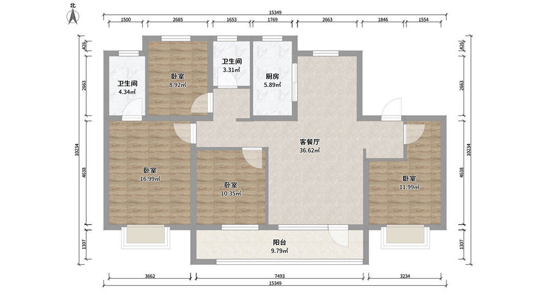
依云四季118㎡三室两厅户型平面布局图


依云四季118㎡三室两厅客厅现代简约风格户型研发案例效果图


依云四季118㎡三室两厅客厅电视现代简约风格户型研发案例效果图


依云四季118㎡三室两厅餐厅现代简约风格户型研发案例效果图


依云四季118㎡三室两厅主卧现代简约风格户型研发案例效果图


依云四季118㎡三室两厅主卧现代简约风格户型研发案例效果图


依云四季118㎡三室两厅次卧现代简约风格户型研发案例效果图


依云四季118㎡三室两厅卫生间现代简约风格户型研发案例效果图

一个案例就是一个家的故事 · 值得你慢慢品味
One case is the story of a home
设计一个家就是设计容纳这个家的故事的空间。家里的每一个人用什么样的姿态生活是设计师构思的主线。
东方家园装饰集团总部美学馆
地址:青岛市市南区福州北路18号
服务热线:400-08-39800
东方家园大宅别墅中心(香港东方国际)
地址:青岛市市南区福州北路22号
服务热线:400-08-39800
东方家园老房改造创意中心
地址:青岛市市南区福州北路20号
服务热线:400-08-39800
东方家园黄岛分公司
地址:开发区漓江西路唐岛湾步行街
服务热线:400-08-39800
东方家园城阳分公司
地址:城阳区正阳中路口水街28号
服务热线:400-08-39800
东方家园胶州分公司
地址:胶州市北京路三里河文苑150号
服务热线:400-08-39800
东方家园日照分公司
地址:日照市济南路336号日照书城3F
服务热线:400-08-39800
东方家园焕新家轻装轻改
地址:市南区漳州一路8号
服务热线:400-08-39800

全国统一咨询热线
400-08-39800
Copyright©2021东方家园装饰集团
鲁ICP备10205373号