心动300秒
|
返回主站
|
日照站
首页
装修服务
别墅大宅
老房翻新
装修案例
装修案例
VR全景图
在施工地
热门楼盘
设计团队
首席设计师
高级设计师
资深设计师
优秀设计师
客户见证
心动300秒
业主评价
德系工艺
装修攻略
东方家园
上一张
下一张
0
1
2
孙红亮
小区名称:巴黎名城
户型:三居室
面积:120平米以下
装修风格:简约风格
分享到:
巴黎名城
三居室
建筑面积:120平米以下
简约风格
喜欢就找TA
设计师
孙红亮
一键预约
装修新家
Detail design
设计细节
现代极简风格,以注重功能性,追求理性,简洁、明朗的色彩而备受年轻一族喜爱,自然的材质与流畅的线条,却能让家居熠熠生辉,合理运用空间,设计出一个时尚既温馨的小窝。
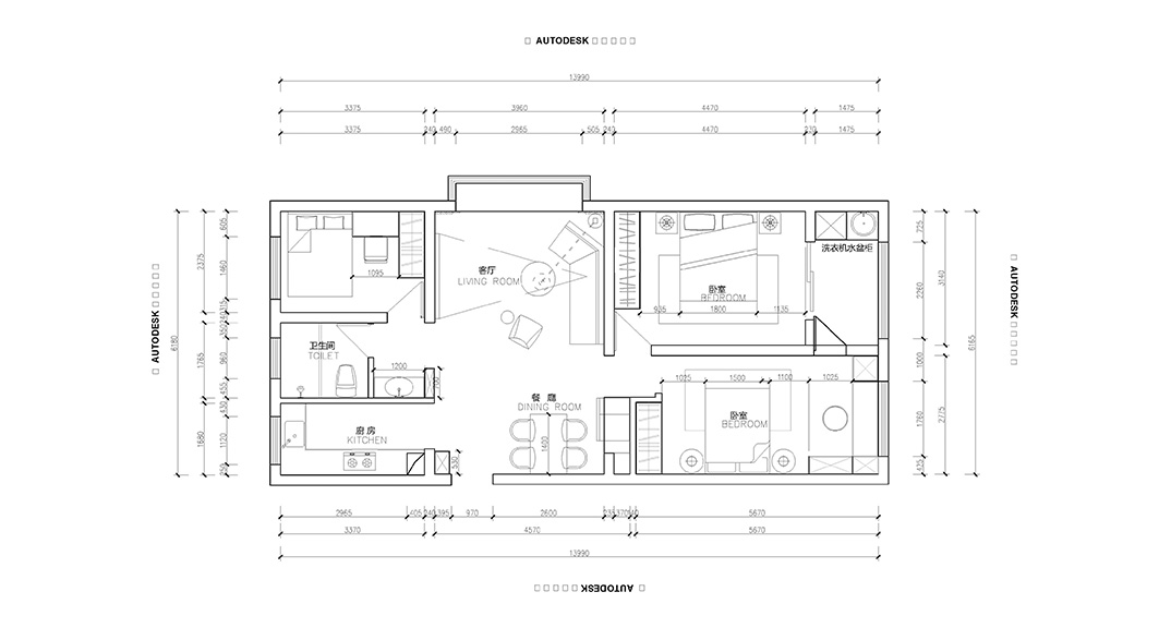
巴黎名城115㎡三室两厅户型图
巴黎名城115㎡三室两厅现代简约风格装修案例效果图
巴黎名城115㎡三室两厅卧室现代简约风格装修案例效果图
巴黎名城115㎡三室两厅次卧现代简约风格装修案例效果图
一个案例就是一个家的故事 ·
值得你慢慢品味
One case is the story of a home
设计一个家就是设计容纳这个家的故事的空间。家里的每一个人用什么样的姿态生活是设计师构思的主线。
设计师
郭兆瑞
找TA设计
保利和颂
平层
建筑面积:120平米以下
简约风格
设计师
刘娜
找TA设计
绿城百合花园
平层
建筑面积:120平米以下
简约风格
设计师
葛素宏
找TA设计
碧海花园
四居室
建筑面积:181-320平米
简约风格
设计师
唐谋旺
找TA设计
樱花小院
别墅
建筑面积:181-320平米
简约风格
设计师
刘增鑫
找TA设计
金秋悦府
二居室
建筑面积:120平米以下
简约风格
设计师
刘增鑫
找TA设计
香溢紫郡
二居室
建筑面积:120平米以下
简约风格
查看更多
网站首页
公司介绍
心动300秒
在线招聘
东方家园装饰集团总部美学馆
地址:青岛市市南区福州北路18号
服务热线:400-08-39800
东方家园大宅别墅中心(香港东方国际)
地址:青岛市市南区福州北路22号
服务热线:400-08-39800
东方家园老房改造创意中心
地址:青岛市市南区福州北路20号
服务热线:400-08-39800
东方家园黄岛分公司
地址:开发区漓江西路唐岛湾步行街
服务热线:400-08-39800
东方家园城阳分公司
地址:城阳区正阳中路口水街28号
服务热线:400-08-39800
东方家园胶州分公司
地址:胶州市北京路三里河文苑150号
服务热线:400-08-39800
东方家园日照分公司
地址:日照市济南路336号日照书城3F
服务热线:400-08-39800
东方家园焕新家轻装轻改
地址:市南区漳州一路8号
服务热线:400-08-39800
全国统一咨询热线
400-08-39800
在线咨询
Copyright©2021东方家园装饰集团
鲁ICP备10205373号
友情链接
佳装网
|
成都尚座装饰
|
办公室装修
|
山东招标网
|
北京办公室装修
|
韩丽橱柜·全屋定制加盟
|
索菲亚全屋定制加盟
|
扬子地板
|
曲靖装修公司
|
滴滴友链
|
成都别墅装修
|
哈尔滨房地产
|
免费报价
免费量房
客服咨询
返回顶部
一键预约
装修新家